1、基坑侧边防水卷材铺贴要求
基坑侧边及距坡顶、坡底800mm 宽度范围内防水卷材必须实铺。
①桩顶、桩侧及桩周边250 范围先刷一道渗透结晶防水涂料;
①地下水位高于基础底板时,基础垫层施工时在后浇带位置设置抗水压垫层,构造做法如图所示;
③防水卷材附加层在抗水压垫层下通长布置并在两边各超出250mm;
④此位置各层顺序为:地基→垫层→防水层→防水附加层→抗水压垫层→底板;结点做法与设计不符时,以设计为准。
7、有外伸基础底板边缘处防水构造做法(砖胎模、木模板)
②施工防水及附加层,防水在砖胎模顶部留出甩茬,此处防水留齐槎;
④施工其余外部防水卷材,与砖胎模甩槎卷材搭接200宽;
④拆除侧边木模,施工其余防水卷材,卷材在筏板侧边搭接200 宽;
②封井时,先向井内填充碎石,后向井内灌注混凝土,井内混凝土从垫层向下高度应大于一米;
⑤预埋钢管直径应满足取泵要求200,壁厚不小于3mm;
① 止水钢板搭接处需要双面紧贴满焊,搭接长度为100mm;
② 不同平面转角处的止水钢板采用整块板弯折后贯通;
同平面止水钢板相遇焊接时应将两块钢板边缘弯折处适当压平,使两块钢板在平直段进行搭接,搭接长度不低于100mm,之后再进行双面紧贴满焊;
① 当止水钢板需穿过柱子和梁箍筋时,此箍筋应使用开口箍,与止水钢板进行焊接;
② 单面焊接长度不小于10d 且不允许将止水钢板焊穿;
① 地下室外墙顶部施工时预埋100x100 木方在图所示位置, 后拆除,形成施工缝;
②转角、变形缝、施工缝、管根处做防水附加层,宽度不小于500mm;
⑤上下两层和相邻两幅卷材的接缝应错开1/2 幅宽且两层卷材不得垂直铺贴;
①出墙群管管根应设置混凝土墩台,与外墙混凝土同时浇筑,外侧群管外皮距墩台外边混凝土300mm;
③群管端头采用钢板临时封堵时,钢板不应超出管边,以便正面模板安装;
①阳角防水附加层顶部不低于250mm,立墙处在施工缝向下不小于250mm;
②立面与平面转角处,卷材接头应留在平面上,距立面不小于600mm;
③立墙与平面防水卷材的搭接宽度均不小于150mm;
① 地下墙体收头部位应高出设计室外地坪500mm。在未到500 高度即遇门窗洞口时,防水转入洞口;
④外墙外侧贴100*100mm1.5 厚自粘防水卷材(采用改性沥青防水涂料冷粘防水卷材);
注:外墙模板拆除后应及时对螺栓孔进行封堵并施工防水,以保证施工质量。
③在外墙外侧孔洞新浇筑混凝土与原结构墙交接处涂刷1.5 厚聚合物水泥砂浆(JS);
① 在主体结构与二次结构交接处挂200mm 宽钢丝网;
②外墙抹灰;(外墙不整体抹灰时,仅在挂钢丝网处抹灰)
③在交界处涂刷1.5 厚聚氨酯或聚合物水泥防水涂料(JS),涂刷范围如图所示;
②二次结构穿外墙套管须采用预制混凝土块并设置**坡度;
③外保温在洞口处同样设置**坡度的洞口,并将玻纤网翻入洞口,抹抗裂砂浆;
②挑檐出挑宽度同外保温厚度(有保温线条时,盖住线条);
①窗洞四周水泥砂浆收口,收口后与窗框间留缝5-7mm;
③安装窗框,填发泡胶。发泡胶应填塞密实,膨出部分用手按入,不得切割;
④施工保温层,抹抗裂砂浆;保温层在窗台位置坡度不小于20mm,且窗台位置抗裂砂浆厚度不小于10mm,抗裂砂浆压框5mm;
⑤洞口内侧直接刮耐水腻子,施工完毕后窗框内侧四周打胶密封;
①在后浇筑的混凝土柱和原结构墙体交接缝隙处涂刷1.5 厚聚合物水泥防水涂料(JS);
②在混凝土压顶和底部墙体交界处涂刷1.5厚聚氨酯防水涂料;
①飘窗板顶面须用水泥砂浆找坡,防止靠近墙体阴角积水;
②聚合物水泥防水涂料(JS)应涂刷整个飘窗板并上翻墙体250mm;
①无反檐时,空调板需在靠近墙体阴角200mm范围涂刷1.5 厚聚合物水泥防水涂料(JS);
②设计为带反檐,两侧为墙体时,空调板向地漏找坡2%,1.5 厚聚合物水泥防水涂料(JS)涂刷整个平台面并在墙体处上反200mm,反檐处涂刷至反檐顶;
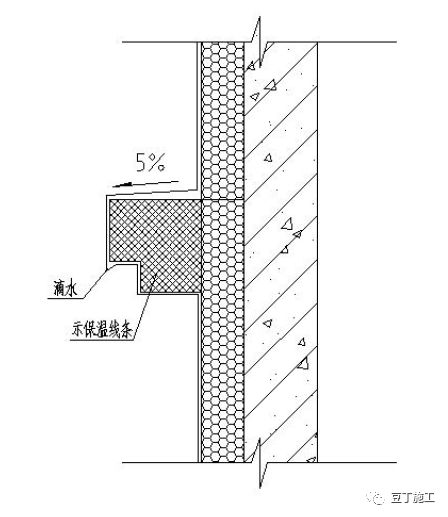
凸出外墙的装饰构件顶面应向外有5%的坡,以防止积水;
③垫层施工前安装第二节地漏,顶部标高同垫层。垫层在地漏四周留设20*20 凹槽;
⑤施工保护层前安装第三节地漏,地漏顶标高为地砖标高-10mm,比二次放坡瓷砖标高-5mm;
③瓷砖粘贴时防水保护层必须具备硬化上人条件(防水保护层施工完毕1 天以上);
④必须控制好防水保护层的坡度、标高等,要确保瓷砖粘接层厚度不超过10mm;
①阴阳角、管根做附加层,网格布宽度不得小于200mm;
②有淋浴要求部位防水高度不得小于1.8m,浴盆位置防水高度不得小于1500mm,宽度宽出淋浴房或浴盆100mm;
③其他位置防水高度不小于300mm(建筑完成面以上);
④如设计图纸或当地政府对防水高度有特殊要求时,按要求施工;
③ 顶部浇筑砼压顶并增加聚合物水泥(JS)防水层(办理洽商);
④ 先在分户墙底部施工防水后再进行挡水基施工(防水宽度超出墙两侧各100mm,反至相邻墙上300mm);
①地面采用细石混凝土一次性压光成活,向地漏找2%坡度;
②水暖管井做1.5mm 厚聚合物水泥(JS)防水层,设计无要求时,办理洽商、变更或在图纸会审时明确做法;
③水暖管井安装穿楼板套管时应高出结构面100mm;
④靠近墙体的套管根部防水在墙体砌筑前涂刷,保证管井内侧套管防水涂刷到位;
①施工地下室地面垫层时,在外墙墙根位置增设100mm 宽排水槽;
②排水槽在墙面抹10厚防水砂浆踢脚线,另一侧垫层阳角加30*2角钢;
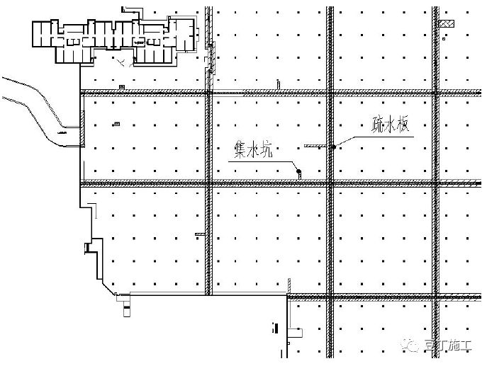
①地下室地面垫层施工时,在车库底板后浇带处垫层下加设疏水板;
①采用细石混凝土预制20mm 厚构件,内压钢丝网片;
②聚合物水泥砂浆粘接牢固,内侧阴角抹20mm 八字角;
④外墙装饰线条在伸缩缝位置断开,留50mm缝隙,内侧打满发泡,待发泡干燥后切除外露部分,刮外墙腻子,喷外墙涂料;
④屋面板采用结构找坡或细石混凝土找坡,一次性压光;
③待保温保护层完成后在管根位置浇筑300mm 高细石混凝土墩台;
①女儿墙防水卷材铺设高度应高出屋面完成面250mm,若女儿墙挑檐至屋面完成面高度低于300mm,则铺设至挑檐底;
②防水卷材封头采用厂家配套扣条固定,钉距300mm;
①在屋面檐沟的位置做卷材防水及附加层,附加层上翻至坡屋面的长度不小于500mm;
③檐沟内防水保护层不得用保温砂浆,必须为等级不低于C25 的细石混凝土;
①屋面设备基础需高出屋面完成面至少250mm 并设置挑檐(设计无要求时,办理洽商或变更);
②防水卷材施工250mm高度处,封头处采用扣条固定,钉距300mm 且不少于2 个;
①出屋面烟风帽基础需高出屋面完成面至少250mm 并设置挑檐(设计无要求时,办理洽商及变更);
②防水卷材施工250mm高度处,封头处才用扣条固定,钉距300mm 且不小于2 个;
①屋面太阳能基础设于屋面面层以上(如为贴砖面,则放于屋面砖基层上);
②太阳能基础不与结构板相连接,以减少防水节点,减少渗漏隐患;
③太阳能基础大小应根据计算确定,以保证整体稳定性;
④太阳能基础下混凝土层内宜甩钢筋锚固于基础内,以增加牢固性;

部分图文转载自网络,版权归原作者所有,如有侵权请联系我们删除。如内容中如涉及加盟,投资请注意风险,并谨慎决策